| Тип рельса | Р-50 |
| Вид, назначение | железнодорожные, магистральные |
| Состояние | новые, б/у |
| Длина | 12500 мм |
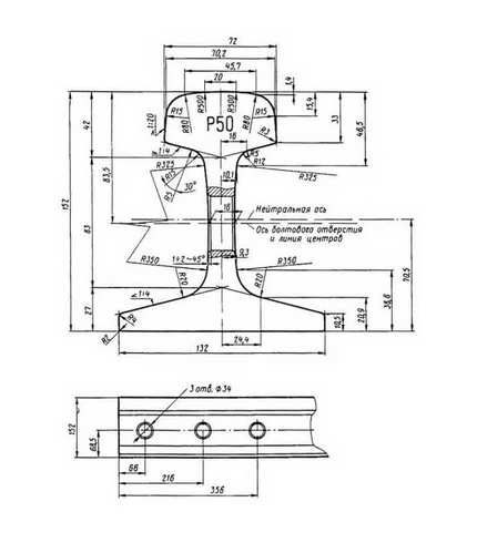
| Ширина | 132 мм |
| Высота | 152 мм |
| Ширина головки | 72 мм |
| Толщина шейки | 16 мм |
| Высота шейки | 83 мм |
| Высота пера подошвы | 10,5 мм |
| Мерная длина | 12,5 м |
| НЕмерная длина | 6-25 м |
| Вес метра | 51,8 кг |
| Метров в 1 тонне | 19,3 м |
| Масса рельса длинной 12,5 метров | 647 кг |
| ГOCT, TУ | Р 51685-2000 |
| Материал | углеродистая сталь |
| Единица измерения | тонна |
Среднее время доставки по Свердловской области: 7-10 дней
Наши логисты свяжутся с вами для уточнения деталей доставки
Рельс Р50 входит в категорию материалов для строительства железнодорожных путей широкой колеи, а его маркировка указывает на округленную массу одного погонного метра такого ж/д проката (51,8 килограмм) Ближайшие аналоги этого двутавра – Р43 и P65 – изделия соответственно меньшей и большей относительной массы, что объясняет наличие в материале универсальных эксплуатационных характеристик, существенно расширяющих сферу его применения.
Железнодорожный рельс Р-50 рассчитан на эксплуатацию в составе ширококолейных железных дорог средней нагруженности. Расчетный грузопоток для проката данного типа находится в пределах 10-25 млн. т /км. в год, а температурные условия эксплуатации не входят в категорию экстремальных. Все это делает изделия Р-50 идеальным выбором для возведения вспомогательных, примыкающих и подъездных путей, промышленных ж/д дорог на территориях фабрик, заводов и морских портов на больше части территории страны, а также для строительства стрелочных переводов. Еще одна распространенная сфера применения таких рельс – прокладка железнодорожных коммуникаций внутри промышленных цеховых площадей или подземных шахт, используемых для движения вагонеток.
У нас вы сможете купить новый рельс Р 50, изготовленный согласно параметрам и требованиям, прописанным в ГОСТ р 51685-2000, который был заменен на новый 51685-2013. В ряду самых важных характеристик:
Согласно ГОСТу 51045-97, различают промышленные рельсы типа Р50, которые не идут на строительство магистральных путей. Для них разрешенная скорость движения поездов и вагонов ниже, но остается достаточной для формирования линий на промпредприятиях. Также в ассортименте проката присутствуют изделия термоупрочненные – сделанные из стали со специальными примесями, повышающими прочность двутавра.
На нашем сайте вы можете скачать ГOCT Р 51685-2013 для железнодорожных рельс Р-50 — ГOCT Р 51685-2013
Пример расшифровки обозначения рельс Р50-НТ260-К76Ф-12,5-3/2 ГОСТ 51685-2013:

Предлагаемая нами цена рельсы Р50 за тонну в Самаре устроит каждого клиента, поскольку мы придерживаемся гибкого подхода к ценообразованию и всегда готовы договариваться. Дополнительные и не менее важные преимущества сотрудничества с нами – постоянное наличие строительного ж/д материала на складах, доступ к абсолютно новой продукции без износа, оперативная отгрузка и налаженные пути доставки рельсового проката в любые регионы России. У нас вы сможете купить рельсы железнодорожные Р50 в любом требуемом количестве, а сделать заказ на первую партию продукции можно, позвонив по указанным на нашем сайте телефонам.
Оплата и доставка продукции
Мы предлагаем свои услуги по доставке различных грузов для железных дорог, включая железнодорожные рельсы, шпалы и другие строительные материалы.
Мы обладаем собственным транспортом, который позволяет нам осуществлять доставку грузов быстро, качественно и в срок. Наша компания осуществляет доставку продукции по всей территории России и ближнего зарубежья.
Варианты доставки
Наша компания заботится о комфорте и безопасности клиентов, поэтому мы предлагаем различные виды транспорта для доставки. Не важно, нужно ли вам доставить грузы на большой расстояние или через город, мы предоставим вам наилучшее решение для вашего бизнеса.
624002, Россия, Свердловская область, г. Арамиль, ул. Гарнизон, 3В